Традиции и Культурное Наследие |  Здоровый Микроклимат


Срубы Домов и Бань
из Лучшего Псковского Леса



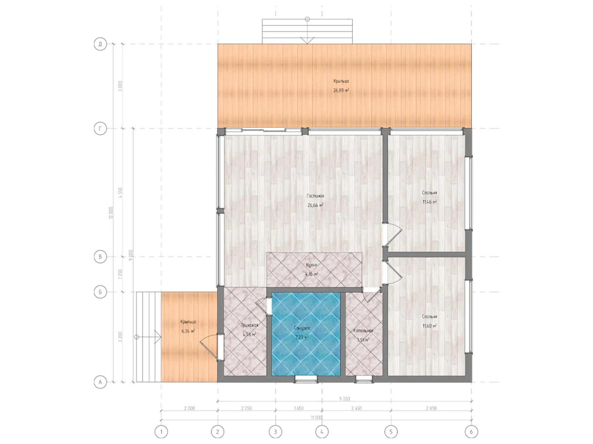
Проект "Подольск"
Каркасный дом 11 х 12 м

Холодный Контур, 200 мм:
3 672 000 р.

Базовая Комплектация, 200 мм:
5 184 000 р.

Комфорт Комплектация, 200 мм:
6 156 000 р.

Холодный Контур, 200 мм:

Базовая Комплектация, 200 мм:

Комфорт Комплектация, 200 мм:

Фундамент

Стоимость фундамента рассчитывается отдельно. Предлагаем: Свайно-винтовой, ЖБ сваи,Свайное поле, Ленточный фундамент,Фундаментная плита УШП, уточняйте менеджера.

Гидроизоляция

Устройство гидроизоляции из 2-х слоев рубероида.

Обвязка дома

Обвязка основания 3 доски по 50х150 мм на ребро (с пропиткой огнебиозащитой ХМ-11). монтаж металлической сетки от грызунов, уточняйте у менеджера

Лаги пола

Нестроганная доска 50х150 мм, 50х200 мм.

Каркас стен дома

По проекту. Обрезная доска, 200 мм камерной сушки, стойки, ригеля, диагональные укосины. Стены снаружи зашиваются имитацией бруса с покраской в 2 слоя, с обрешёткой и ветрозащитной мембраной. Шаг 0,59 м. Без утепления, уточняйте у менеджера.

Пол. Черновой пол

По проекту, лаги,  уточняйте у менеджера.

Чистовой пол

Без чистового пола, уточняйте у менеджера.

Каркас  перегородок

Обрезная доска 50х100 мм  камерной сушки, стойки, ригеля, диагональные укосины. Перегородки без утепления,  уточняйте у менеджера.

Высота 1-ого этажа

По проекту дома 2,7 — 3 м.

Высота 2-ого этажа (если есть)

По проекту дома 2,7 — 3,5 м.

Межэтажное перекрытие и потолочные балки

По проекту. Доска 200х50 мм, шаг 0,59 м. Без утепления,  уточняйте у менеджера.

Потолок

По проекту. Без утепления,  уточняйте у менеджера.

Стропильная система

По проекту, состоящая из несущих элементов (стропила, стойки, прогоны, затяжки) и обрешетки, который передает нагрузку от кровли на стены дома. Используются доски 50х200 мм.

Фронтоны (если есть)

По проекту. Силовой каркас, напоминает стену, без утепления,  уточняйте у менеджера.

Поднебесники (свесы)

По проекту, подшиты вагонкой камерной сушки, виниловыми софитами, другое, ширина карнизов 0,6 м, уточняйте у менеджера.

Кровля

По проекту. Кровельное покрытие, мягкая кровля (битумная черепица). Подкладочный ковер. Ветро-гидроизоляционная мембрана. Обрешетка (контр-обрешетка). Без утепления. Возможна замена на Металлочерепицу, Проф. настил, уточняйте у менеджера.

Окна

Однокамерные стеклопакеты Veka с фурнитурой, возможно замена на двухкамерные стеклопакеты, уточняйте у менеджера.

Двери

Входная дверь металлическая, утепленная, Россия с фурнитурой

Лестница (если есть)

По проекту. Лестница выполняется с перилами, балясинами, стартовыми столбами под ключ.

Терраса, балкон, крыльцо (если есть)

По проекту.

Ступени у входа

Приступок.

Сборка

Входит в стоимость.

Доставка в пределах 50 км от МКАД - бесплатная, далее 200 руб. - 1 км.

Изменения, оговариваются индивидуально.

Фундамент

Стоимость фундамента рассчитывается отдельно. Предлагаем: Свайно-винтовой, ЖБ сваи,Свайное поле, Ленточный фундамент,Фундаментная плита УШП, уточняйте менеджера.

Гидроизоляция

Устройство гидроизоляции из 2-х слоев рубероида.

Обвязка дома

Обвязка основания 3 доски по 50х150 мм на ребро (с пропиткой огнебиозащитой ХМ-11). монтаж металлической сетки от грызунов, уточняйте у менеджера

Лаги пола

Нестроганная доска 50х150 мм, 50х200 мм.

Каркас стен дома

По проекту. Обрезная доска, 200 мм камерной сушки, стойки, ригеля, диагональные укосины. Стены снаружи зашиваются имитацией бруса с покраской в 2 слоя, с обрешёткой и ветрозащитной мембраной. Шаг 0,59 м. Утепление 200 мм, минеральной ватой (плиты) Технониколь РОКЛАЙТ. Изнутри монтируется пароизоляция, присутствует вент-зазор,  уточняйте у менеджера.

Пол. Черновой пол

По проекту, черновой пол, присутствует ветро-защитная мембрана, утепление 200 мм, минеральной ватой (плиты) Технониколь РОКЛАЙТ, пароизоляция.

Чистовой пол

Без чистового пола, уточняйте у менеджера.

Каркас  перегородок

Обрезная доска 50х100 мм  камерной сушки, стойки, ригеля, диагональные укосины. Перегородки утепление 100 мм, минеральной ватой (плиты) Технониколь РОКЛАЙТ. Монтируется пароизоляция,  уточняйте у менеджера.

Высота 1-ого этажа

По проекту дома 2,7 — 3 м.

Высота 2-ого этажа (если есть)

По проекту дома 2,7 — 3,5 м.

Межэтажное перекрытие и потолочные балки

По проекту. Доска 200х50 мм, шаг 0,59 м. Утепление по проекту 200 мм, минеральной ватой (плиты) Технониколь РОКЛАЙТ, монтируется ветрозащитная мембрана и пароизоляция.

Потолок

По проекту. Присутствует пароизоляция, утепление минеральная вата (плиты) Технониколь РОКЛАЙТ, 200 мм.

Стропильная система

По проекту, состоящая из несущих элементов (стропила, стойки, прогоны, затяжки) и обрешетки, который передает нагрузку от кровли на стены дома. Используются доски 50х200 мм.

Фронтоны (если есть)

По проекту. Силовой каркас, напоминает стену, его утепление минеральной ватой, пароизоляцию изнутри, ветрозащиту снаружи, и финишную обшивку снаружи. Утепление по проекту: 200 мм, минеральной ватой (плиты ) Технониколь РОКЛАЙТ.

Поднебесники (свесы)

По проекту, подшиты вагонкой камерной сушки, виниловыми софитами, другое, ширина карнизов 0,6 м, уточняйте у менеджера.

Кровля

По проекту. Кровельное покрытие, мягкая кровля (битумная черепица). Подкладочный ковер. Ветро-гидроизоляционная мембрана. Обрешетка (контр-обрешетка). Утеплитель минеральная вата 200 мм, Технониколь РОКЛАЙТ. Пароизоляционная пленка.
Возможна замена на Металлочерепицу, Проф. настил, уточняйте у менеджера.

Окна

Однокамерные стеклопакеты Veka с фурнитурой, возможно замена на двухкамерные стеклопакеты, уточняйте у менеджера.

Двери

Входная дверь металлическая, утепленная, Россия с фурнитурой

Лестница (если есть)

По проекту. Лестница выполняется с перилами, балясинами, стартовыми столбами под ключ.

Терраса, балкон, крыльцо (если есть)

По проекту.

Ступени у входа

Приступок.

Сборка

Входит в стоимость.

Доставка в пределах 50 км от МКАД - бесплатная, далее 200 руб. - 1 км.

Изменения, оговариваются индивидуально.

Фундамент

Стоимость фундамента рассчитывается отдельно. Предлагаем: Свайно-винтовой, ЖБ сваи,Свайное поле, Ленточный фундамент,Фундаментная плита УШП, уточняйте менеджера.

Гидроизоляция

Устройство гидроизоляции из 2-х слоев рубероида.

Обвязка дома

Обвязка основания 3 доски по 50х150 мм на ребро (с пропиткой огнебиозащитой ХМ-11). монтаж металлической сетки от грызунов, уточняйте у менеджера

Лаги пола

Нестроганная доска 50х150 мм, 50х200 мм.

Каркас стен дома

По проекту. Обрезная доска, 200 мм камерной сушки, стойки, ригеля, диагональные укосины. Стены снаружи зашиваются виниловый сайдинг DOCKE или панели фасадные гибкие Hauberk с обрешёткой и ветрозащитной мембраной. Шаг 0,59 м. Утепление 200 мм, минеральной ватой (плиты). Изнутри монтируется пароизоляция и внутренняя отделка, присутствует вент-зазор (возможна замена фасада на Фиброцементный сайдинг, Имитацию бруса, Гибкий кирпич, Проф. лист) уточняйте у менеджера.

Пол. Черновой пол

По проекту, плиты Quick Deck 38 мм, настилаются на лаги пола. Присутствует ветро-защитная мембрана, утепление 200 мм, минеральной ватой (плиты), пароизоляция.

Чистовой пол

По проекту, плиты Quick Deck 38 мм, ламинат или Кварцвиниловая плитка или плитка для пола, уточняйте у менеджера.

Каркас  перегородок

Обрезная доска 50х100 мм  камерной сушки, стойки, ригеля, диагональные укосины. Стены зашиваются плитами Quick Deck 12 мм или вагонка или имитация бруса АБ, с покраской,  уточняйте у менеджера. Утепление 100 минеральной ватой (плиты).

Высота 1-ого этажа

По проекту дома 2,7 — 3 м.

Высота 2-ого этажа (если есть)

По проекту дома 2,7 — 3,5 м.

Межэтажное перекрытие и потолочные балки

По проекту. Доска 200х50 мм, шаг 0,59 м. Утепление по проекту 200 мм, минеральной ватой (плиты), монтируется ветрозащитная мембрана и пароизоляция.

Потолок

По проекту. Присутствует пароизоляция, утепление минеральная вата (плиты), 200 мм. Чистовая отделка - уточняйте у менеджера.

Стропильная система

По проекту, состоящая из несущих элементов (стропила, стойки, прогоны, затяжки) и обрешетки, который передает нагрузку от кровли на стены дома. Используются доски 50х200 мм.

Фронтоны (если есть)

По проекту. Силовой каркас, напоминает стену, его утепление минеральной ватой, пароизоляцию изнутри, ветрозащиту снаружи, и финишную обшивку снаружи. Утепление по проекту: 200 мм, минеральной ватой (плиты).

Поднебесники (свесы)

По проекту, подшиты вагонкой камерной сушки, виниловыми софитами, другое, ширина карнизов 0,6 м, уточняйте у менеджера.

Кровля

По проекту. Ондулин (цвет на выбор) с прокладкой ветро-защитной (подкровельной) мембраной. Возможна замена на Металлочерепицу, Профнастил, Гибкую черепицу (цвет на выбор), уточняйте у менеджера.

Окна

Однокамерные стеклопакеты с фурнитурой, возможно замена на двухкамерные стеклопакеты, уточняйте у менеджера.

Двери

Входная дверь металлическая, утепленная, Россия с фурнитурой. Межкомнатные двери филёнчатые.

Лестница (если есть)

По проекту. Лестница выполняется с перилами, балясинами, стартовыми столбами под ключ.

Терраса, балкон, крыльцо (если есть)

По проекту.

Ступени у входа

Приступок.

Сборка

Входит в стоимость.

Доставка в пределах 50 км от МКАД - бесплатная, далее 200 руб. - 1 км.

Изменения, оговариваются индивидуально.

Наши Каркасные Дома

Смотрите наши фото домов. Мы строим для Вас, позвольте нам помочь вам создать семейный очаг. Мы поможем вам создать уютный и надежный дом, который станет сердцем вашей семьи

Дополнительно:

Фундамент свайно-винтовой

6200 ₽ за 1 сваю (2.5 м, диаметр 108 мм)

Ж/б свайный фундамент

7500 ₽ за 1 сваю (3 м, квадрат сечения 200x200 мм)

Отпил торцов 

850 ₽ за п.м.

Обвязка цельным брусом 150х150 мм

Цельный брус естественной влажности, 1800 ₽ за п.м.

Шлифовка торцов

700₽ за п.м.

Шлифовка стен

780 ₽ за м² 

Обработка пиломатериала Антисептическим составом

2300 ₽ за 1 м³

Защитная Сетка от Грызунов

380 ₽ за м² 

Влажная уборка стен

220 ₽ за м² 

Грунтовка стен

200 ₽ за м² 

Покраска стен маслом 2 слоя

520 ₽ за м² 

Межслойная шлифовка

230 ₽ за м² 

Тёплый шов

220 ₽ за п.м.

Конопатка стен от

260 ₽ за п.м.

Формирование оконных проёмов

1200 ₽ за п.м.

Установка черновой обсады

900 ₽ за м² 

Монтаж потолка из вагонки с шлифовкой и покраской

2300 ₽ за м²

Монтаж наличников из щита с шлифовкой ,покраской и фрезировкой

1500 ₽ за п.м.

Монтаж каркасных перегородок из сухой строганной доски

1400 ₽ за м²

Утепление крыши с внутренней стороны на ширину стропила 200 мм

700 ₽ за м² 

Монтаж пароизоляции с проклейкой

350 ₽ за м²

Монтаж обрешётки на потолок без выравнивания

400 ₽ за м² 

Замена кровли на Проф. лист или Металлочерепицу

680 ₽ за м²

Снегозадержатели

980 ₽ за п.м.

Водосточная пласт. система "Дёке" или аналог

Рассчитывается индивидуально

Отделка фундамента пласт. цокольными панелями "Дёке" или аналог

Рассчитывается индивидуально

Покраска наружней части дома в 1 слой

800 ₽ м²

Строительная бытовка 2×3 м

30 000 ₽

Замена окон на ПВХ 2-камерные

Рассчитывается индивидуально

Аренда генератора (ГСМ заказчика)

16 000 ₽

Туалет щитовой 1×1,2 м

23 000 ₽

Успейте до Повышения Цен в этом Сезоне.
 Фиксация цены!

{{_dnn}}
{{_dl}}
{{_hnn}}
{{_hl}}
{{_mnn}}
{{_ml}}
{{_snn}}
{{_sl}}

Отправьте Заявку
Успейте до Повышения Цены!

Имя
Номер телефона *
Нажимая кнопку, вы даете согласие на обработку персональных данных

Наши Каркасные Дома

Мы с заботой и вниманием создаем пространство, где будут рождаться воспоминания и крепнуть семейные традиции

Нужна Консультация или Смета?
Мы оперативно ответим на все ваши вопросы и подготовим расчёт Вашего проекта в Кратчайшие сроки

Имя
Электронная почта
Телефон *
Файл
Прикрепить файл...
Нажимая кнопку, вы даете согласие на обработку персональных данных

Ищете Надёжное и Проверенное временем решение для Строительства?

Присоединяйтесь к нам! За 20+ лет мы стали экспертами в строительстве Домов и Бань. Наш опыт – это гарантия качества, надежности и воплощения ваших самых смелых идей. Позвольте нам помочь вам создать семейный очаг, который будет согревать поколения!

Доверьтесь нашему опыту и профессионализму, и мы построим дом, который станет гордостью вашей семьи! Звоните:

Наши контакты

Квартал Кирилловка, микрорайон Подрезково, Химки, Московская область, владение 3С
Координаты: 55.966254, 37.326353
Режим работы: Понедельник - Суббота с 10:00 - 18:00

Оставьте заявку на Бесплатную Консультацию

© Все права защищены "Ярмарка Срубов". Размещенная на сайте информация носит ознакомительный характер, не является публичной офертой.

* Мы используем cookies для удобства пользования сайтом. Оставаясь с нами, вы соглашаетесь на обработку данных и использование cookies

Наверх