Традиции и Культурное Наследие |  Здоровый Микроклимат


Срубы Домов и Бань
из Лучшего Псковского Леса



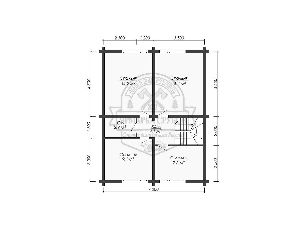
Проект дома "Шлиссельбург"
Дом из бревна 9х9 м

Сруб Без Кровли, Под Усадку. Рубка в Лапу
Звоните!

Сруб С Кровлей, Под Усадку. Рубка в Лапу
Звоните!

Сруб Без Кровли, Под Усадку. Рубка вЧашу
Звоните!

Сруб С Кровлей, Под Усадку. Рубка в Чашу
Звоните!

Сруб Без Кровли

Сруб С Кровлей

Фундамент

Стоимость фундамента рассчитывается отдельно. Предлагаем: Свайно-винтовой, ЖБ сваи, Свайное поле,  Ленточный фундамент, Фундаментная плита УШП, уточняйте у менеджера.

Гидроизоляция

Устройство гидроизоляции из 2-х слоев рубероида.

Обвязка дома / бани

Для обвязки используется цельный брус – 150х150, 150х200 или 200х200 мм.

Сруб

Сруб из окоренного бревна, средний диаметр 250 мм. (вершина), строганное бревно, уточняйте у менеджера.

Тип рубки

По проекту, рубка осуществляется "В Лапу".
 Рубка "В Чашу", уточняйте у менеджера.

Межвенцовый утеплитель

Джут,  возможен другой, уточняйте у менеджера.

Перегородки

По проекту рубленные из такого же бревна, 1 и 2 этаж (несущие стены), дополнительные перегородки, уточняйте у менеджера.

Пол

Черновой и чистовой пол - Отсутствует,  уточняйте у менеджера.

Высота 1, 2-ого этажа

По проекту. 1 этажа 2,2 - 2,7 м. (+/- 5 см), 2 этажа (если есть) 2,2 - 2,5 м. (+/- 5 см)

Потолочные балки

По проекту, бревно 230-250 мм (средний диаметр), с шагом 0,8 метра.

Стропильная система

Отсутствует,  уточняйте у менеджера.

Фронтоны крыши

Отсутствует,  уточняйте у менеджера.

Вынос крыши

Отсутствует,  уточняйте у менеджера.

Кровля

Отсутствует,  уточняйте у менеджера.

Окна

Отсутствует,  уточняйте у менеджера.

Двери

Отсутствует,  уточняйте у менеджера.

Лестница

Отсутствует,  уточняйте у менеджера.

Веранда, Терраса

По проекту. Выпуски верхнего и нижнего венцов по длинной стороне сруба длиной до 3 метров, опорные стойки из круглого бревна.

Ступени у входа

Отсутствует, уточняйте у менеджера.

Сборка

Входит в стоимость. Можно рассчитать без сборки, уточняйте у менеджера.

Доставка в пределах 50 км от МКАД - бесплатная, далее 200 руб. - 1 км.

Изменения, оговариваются индивидуально.

Фундамент

Стоимость фундамента рассчитывается отдельно. Предлагаем: Свайно-винтовой, ЖБ сваи, Свайное поле,  Ленточный фундамент, Фундаментная плита УШП, уточняйте у менеджера.

Гидроизоляция

Устройство гидроизоляции из 2-х слоев рубероида.

Обвязка дома / бани

Для обвязки используется цельный брус – 150х150, 150х200 или 200х200 мм.

Сруб

Сруб из окоренного бревна, средний диаметр 250 мм. (вершина), строганное бревно, уточняйте у менеджера.

Тип рубки

Лапа, по проекту. Рубка в чашу, уточняйте у менеджера.

Межвенцовый утеплитель

Джут,  возможен другой, уточняйте у менеджера.

Перегородки

По проекту рубленные из такого же бревна, 1 и 2 этаж (несущие стены), дополнительные перегородки, уточняйте у менеджера.

Пол

Черновой и чистовой пол - Отсутствует,  уточняйте у менеджера.

Высота 1, 2-ого этажа

По проекту. 1 этажа 2,2 - 2,7 м. (+/- 5 см), 2 этажа (если есть) 2,2 - 2,5 м. (+/- 5 см)

Потолочные балки

По проекту, бревно 230-250 мм (средний диаметр), с шагом 0,8 метра.

Стропильная система

По проекту, стропила – доска 50x150 мм или 50х200 мм, контр/обрешетка – брусок 40х50 мм, обрешетка – доска 25х100 мм.

Фронтоны крыши

По проекту, бревно или зашиты обрезной доской 25х150 мм. Каркас фронтонов, доска 50х150 мм. Высота фронтонов, по проекту 1,5 - 2.6 м.

Вынос крыши

Вынос крыши не менее 50 см.

Кровля

По проекту. Кровельное покрытие, Ондулин или Проф. лист фирмы Grand Line, ветро-гидроизоляционная мембрана, обрешетка (контр-обрешетка). Установки карнизной планки ,торцевой планки, коньковой  планки. Возможно замена на Металлочерепицу, уточняйте у менеджера

Окна

Отсутствует,  уточняйте у менеджера.

Двери

Отсутствует,  уточняйте у менеджера.

Лестница

Отсутствует,  уточняйте у менеджера.

Веранда, Терраса

По проекту. Выпуски верхнего и нижнего венцов по длинной стороне сруба длиной до 3 метров, опорные стойки из круглого бревна.

Ступени у входа

Отсутствует, уточняйте у менеджера.

Сборка

Входит в стоимость.

Доставка в пределах 50 км от МКАД - бесплатная, далее 200 руб. - 1 км.

Изменения, оговариваются индивидуально.

Наши Построенные Срубы

Смотрите наши фото домов. Мы строим для Вас, позвольте нам помочь вам создать семейный очаг. Мы поможем вам создать уютный и надежный дом, который станет сердцем вашей семьи

Дополнительно:

Фундамент свайно-винтовой

6200 ₽ за 1 сваю (2.5 м, диаметр 108 мм)

Ж/б свайный фундамент

7500 ₽ за 1 сваю (3 м, квадрат сечения 200x200 мм)

Отпил торцов 

850 ₽ за п.м.

Обвязка цельным брусом 150х150 мм

Цельный брус естественной влажности, 1800 ₽ за п.м.

Шлифовка торцов

700₽ за п.м.

Шлифовка стен

780 ₽ за м² 

Обработка пиломатериала Антисептическим составом

2300 ₽ за 1 м³

Защитная Сетка от Грызунов

380 ₽ за м² 

Влажная уборка стен

220 ₽ за м² 

Грунтовка стен

200 ₽ за м² 

Покраска стен маслом 2 слоя

520 ₽ за м² 

Межслойная шлифовка

230 ₽ за м² 

Тёплый шов

220 ₽ за п.м.

Конопатка стен от

260 ₽ за п.м.

Формирование оконных проёмов

1200 ₽ за п.м.

Установка черновой обсады

900 ₽ за м² 

Монтаж потолка из вагонки с шлифовкой и покраской

2300 ₽ за м²

Монтаж наличников из щита с шлифовкой ,покраской и фрезировкой

1500 ₽ за п.м.

Монтаж каркасных перегородок из сухой строганной доски

1400 ₽ за м²

Утепление крыши с внутренней стороны на ширину стропила 200 мм

700 ₽ за м² 

Монтаж пароизоляции с проклейкой

350 ₽ за м²

Монтаж обрешётки на потолок без выравнивания

400 ₽ за м² 

Замена кровли на Проф. лист или Металлочерепицу

680 ₽ за м²

Снегозадержатели

980 ₽ за п.м.

Водосточная пласт. система "Дёке" или аналог

Рассчитывается индивидуально

Отделка фундамента пласт. цокольными панелями "Дёке" или аналог

Рассчитывается индивидуально

Покраска наружней части дома в 1 слой

800 ₽ м²

Строительная бытовка 2×3 м

30 000 ₽

Замена окон на ПВХ 2-камерные

Рассчитывается индивидуально

Аренда генератора (ГСМ заказчика)

16 000 ₽

Туалет щитовой 1×1,2 м

23 000 ₽

Ищете Надёжное и Проверенное временем решение для Строительства?

Присоединяйтесь к нам! За 20+ лет мы стали экспертами в строительстве Домов и Бань. Наш опыт – это гарантия качества, надежности и воплощения ваших самых смелых идей. Позвольте нам помочь вам создать семейный очаг, который будет согревать поколения!

Доверьтесь нашему опыту и профессионализму, и мы построим дом, который станет гордостью вашей семьи! Звоните:

Наши Недорогие Срубы

Каждый сруб – это гармония природы и мастерства, созданная с любовью и вниманием к деталям.
Мы используем только качественную древесину и проверенные технологии, чтобы ваш дом служил вам верой и правдой долгие годы.

Успейте до Повышения Цен в этом Сезоне.
 Фиксация цены!

{{_dnn}}
{{_dl}}
{{_hnn}}
{{_hl}}
{{_mnn}}
{{_ml}}
{{_snn}}
{{_sl}}

Отправьте Заявку
Успейте до Повышения Цены!

Имя
Номер телефона *
Нажимая кнопку, вы даете согласие на обработку персональных данных

Нужна Консультация или Смета?
Мы оперативно ответим на все ваши вопросы и подготовим расчёт Вашего проекта в Кратчайшие сроки

Имя
Электронная почта
Телефон *
Файл
Прикрепить файл...
Нажимая кнопку, вы даете согласие на обработку персональных данных

Наши контакты

Квартал Кирилловка, микрорайон Подрезково, Химки, Московская область, владение 3С
Координаты: 55.966254, 37.326353
Режим работы: Понедельник - Суббота с 10:00 - 18:00

Оставьте заявку на Бесплатную Консультацию

© Все права защищены "Ярмарка Срубов". Размещенная на сайте информация носит ознакомительный характер, не является публичной офертой.

* Мы используем cookies для удобства пользования сайтом. Оставаясь с нами, вы соглашаетесь на обработку данных и использование cookies

Наверх